Skip to main content

Via Siena

L’ampia distribuzione degli spazi interni e l'architettura moderna e purista, caratterizzano quest’ultimo progetto di Experior. Una bifamiliare realizzata con la tecnica della costruzione in pre-fabbricato, per garantire un’esperienza abitativa superiore.

Le case in legno sono sempre più apprezzate. Gli elementi prefabbricati che le compongono, presentano straordinarie caratteristiche e proprietà statiche, offrendo allo stesso tempo una sicurezza antisismica notevolmente maggiore rispetto ad una casa tradizionale. Sono attualmente disponibili in vendita due appartamenti, situati tra Via Siena e Via Sassi a pochi minuti a piedi dal centro storico di Padova.

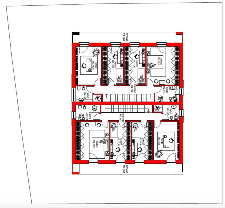
Le Planimetrie

Cliccare sulle immagini per ingrandire